Property Search Details

1833 N Big Star Ave Eagle, ID 83616

Directions

Hwy 16/Floating Feather

Price: $456,900
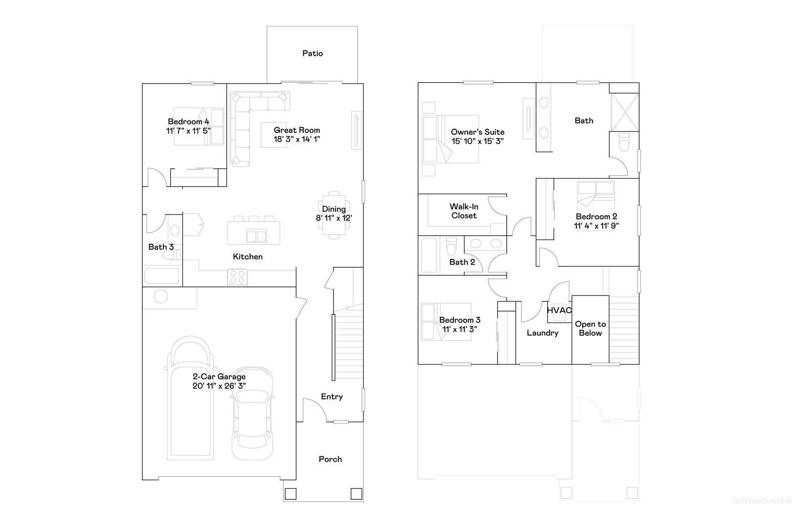
Beds: 4
Baths: 3
Garages: 2
Type: Townhouse
Area: Eagle - 0900
Land Size: Sm Lot 5999 SF, Auto Sprinkler System, Full Sprink
SqFt: 2021
Age: Under Construction
Acres: 0.087
Garage Type: true
Subdivision: Eagle Ridge
Year Built: 2026
Construction: HardiPlank Type

Includes

Air Conditioned: true
Water: City Service
Heating: Forced Air

Schools

School District: West Ada School District
Sr High School: Eagle
Jr High School: Star
Grade School: Eagle

Contact for more details:

A-Team Consultants
1099 S Wells St #200, Meridian, ID 83642
Phone: 208.761.1735   Email: info@ateamboise.com

Description

The Duet Series blends luxury with convenience in a beautifully designed two-story townhouse. Featuring 9’ ceilings on the main level, these homes offer an open-concept living room and kitchen with stainless steel appliances, quartz countertops, and a gourmet island—ideal for entertaining. Every home includes window blinds, refrigerator, washer and dryer, and full landscaping. Enjoy the ease of townhome living with the upscale finishes you expect from Lennar. The Eagle Ridge community includes walking paths, Tot lot, Clubhouse, Pool, and Pickleball courts.
Legal Description:
Lot 32, Block 04, Avory Crest Sub, Ada County
Listing info for this property courtesy of  Fathom Realty  Information deemed reliable but not guaranteed. Buyer to verify all information. All properties are subject to prior sale, change or withdrawal. Neither listing broker(s), shall be responsible for any typographical errors, misinformation, misprints and shall be held totally harmless.