2813 S Indiana Caldwell, ID 83605
Directions
On Indiana between Locust & Cherry
Price: $1,999,990
Beds:
Baths: 0
Garages:
Type: Commercial
Area: Caldwell SW - 1280
Land Size: 1 Acre - 4.99 Acres
SqFt:
Acres: 3.89
Subdivision: 0 Not Applic.
Contact for more details:
A-Team Consultants
1099 S Wells St #200, Meridian, ID 83642
Phone: 208.761.1735 Email: info@ateamboise.com
1099 S Wells St #200, Meridian, ID 83642
Phone: 208.761.1735 Email: info@ateamboise.com
Description
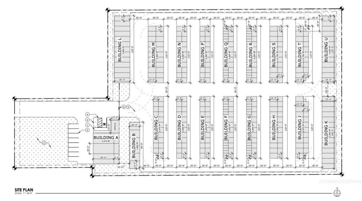
Discover an extraordinary investment opportunity on 3.89 acres in the heart of Caldwell. Fully approved 419 enclosed storage units, 3 versatile flex units, and an on-site house—perfect for a manager`s residence or office. The diverse unit mix caters to personal, business, and specialty storage needs, ensuring high demand in a rapidly growing area. Based on conservative assumptions, at an 8% cap rate the stabilized value is projected to be around $4.9 million. Under more favorable market conditions (a 6% cap rate), the value could exceed $6.55 million.With all approvals in place, you’ll save time and effort, accelerating your path to profitability. Strategically located in Caldwell, a city experiencing robust growth and rising demand for secure, convenient storage, this property offers investors a rare chance to own a high-performing asset.
Legal Description:
Exhibit A
Exhibit A
| Listing info for this property courtesy of Mountain Realty Information deemed reliable but not guaranteed. Buyer to verify all information. All properties are subject to prior sale, change or withdrawal. Neither listing broker(s), shall be responsible for any typographical errors, misinformation, misprints and shall be held totally harmless. |





