15881 Purple Sage Rd # 15 Caldwell, ID 83607
Directions
84 Exit 25, E on Hwy 44, N on Old Hwy 30, W on Purple Sage Rd to Purple Sage Manor.
Price: $125,000
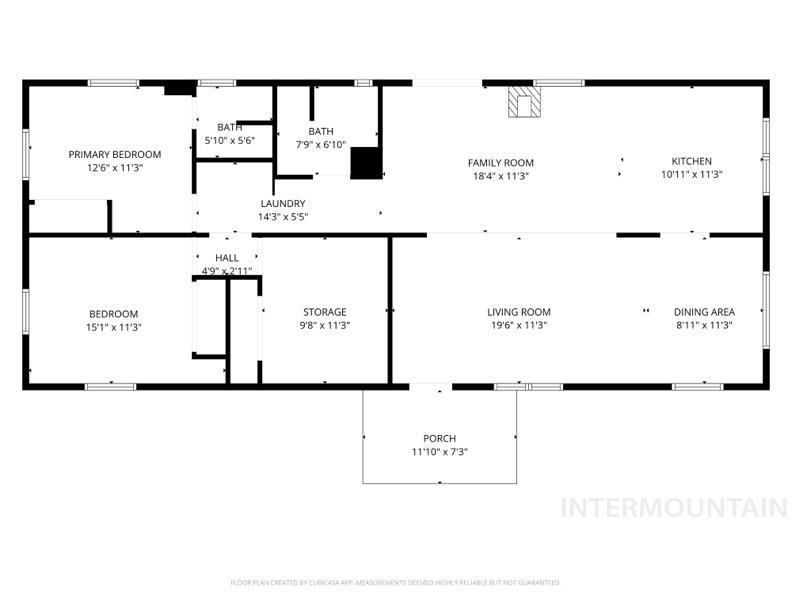
Beds: 3
Baths: 2
Garages: 0
Type: Mobile/Manu Rented Lot
Area: Caldwell NW - 1275
Land Size: Garden, Manual Sprinkler System
SqFt: 1344
Subdivision: 0 Not Applicable
Year Built: 1977
Lot Size: 0x0 x 0x0
Includes
Fireplace: Wood Burning Stove
Air Conditioned: true
Water: Shared Well
Heating: Electric
Schools
School District: Middleton School District #134
Sr High School: Middleton
Jr High School: Middleton Jr
Grade School: Purple Sage
Contact for more details:
A-Team Consultants
1099 S Wells St #200, Meridian, ID 83642
Phone: 208.761.1735 Email: info@ateamboise.com
1099 S Wells St #200, Meridian, ID 83642
Phone: 208.761.1735 Email: info@ateamboise.com
Description
Cozy and well-maintained mobile home in a desirable park known for its spacious lots and welcoming community. This home has seen numerous updates in recent years, making it both charming and move-in ready. All new windows with interior wood trim bring in natural light, while the remodeled bathroom and new kitchen and dining room flooring add modern comfort. Fresh paint throughout the living room, kitchen, dining, hallway, and bedroom creates a bright and inviting feel, complemented by new sheetrock in the living room. A newly built front deck and ramp offer both accessibility and curb appeal. The backyard is designed for convenience and enjoyment with an awning and an enclosed wood storage area to support the efficient wood-burning stove that heats the entire home. The large yard provides plenty of space for gardening, raised beds, or simply relaxing outdoors. A wonderful opportunity to enjoy comfort and updates in a peaceful setting!
Legal Description:
33-5N-3W NW Purple Sage Mhp Trlr 15 R38155000 0 1977 Titan 24X56 Vin 407777S2545ida Title D85009248
33-5N-3W NW Purple Sage Mhp Trlr 15 R38155000 0 1977 Titan 24X56 Vin 407777S2545ida Title D85009248
| Listing info for this property courtesy of Sweet Group Realty Information deemed reliable but not guaranteed. Buyer to verify all information. All properties are subject to prior sale, change or withdrawal. Neither listing broker(s), shall be responsible for any typographical errors, misinformation, misprints and shall be held totally harmless. |





















