112 3rd St West Magic, ID 83352
Directions
Hwy 75- West Magic Road to 3rd St. Turn South and go about 1 Block.
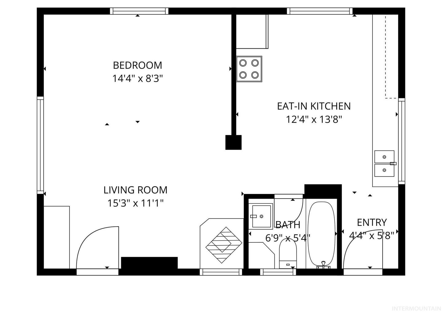
Price: $124,500
Beds: 1
Baths: 1
Garages: 0
Type: Single Family Residence
Area: Blaine-Custer County - 1525
Land Size: Sm Lot 5999 SF, R.V. Parking
SqFt: 600
Acres: 0.09
Subdivision: 0 Not Applicable
Year Built: 1970
Construction: Frame
Lot Size: 0x0 x 0x0
Includes
Fireplace: Pellet Stove
Air Conditioned: true
Water: Shared Well
Heating: Wall Furnace, Other
Schools
School District: Shoshone Joint District #312
Sr High School: Shoshone
Jr High School: Shoshone
Grade School: Shoshone
Contact for more details:
A-Team Consultants
1099 S Wells St #200, Meridian, ID 83642
Phone: 208.761.1735 Email: info@ateamboise.com
1099 S Wells St #200, Meridian, ID 83642
Phone: 208.761.1735 Email: info@ateamboise.com
Description
Discover the charm of lake living in this cozy 1-bedroom, 1-bath cabin nestled in a peaceful lakeside community. Just minutes away from the lakefront, this retreat offers the perfect blend of comfort and convenience. Inside, you’ll find an efficient layout complete with a Murphy bed for extra sleeping space, making it ideal for guests. The cabin comes fully furnished, so you can move right in and start enjoying your getaway. Two storage sheds provide plenty of room for outdoor gear, tools, or lake toys. Whether you’re looking for a weekend escape or a simple year-round residence, this inviting cabin is ready to be your lakeside retreat.
Legal Description:
West Side Sub Lot 6 Blk 5
West Side Sub Lot 6 Blk 5
Listing info for this property courtesy of Keller Williams Sun Valley Southern Idaho Information deemed reliable but not guaranteed. Buyer to verify all information. All properties are subject to prior sale, change or withdrawal. Neither listing broker(s), shall be responsible for any typographical errors, misinformation, misprints and shall be held totally harmless. |