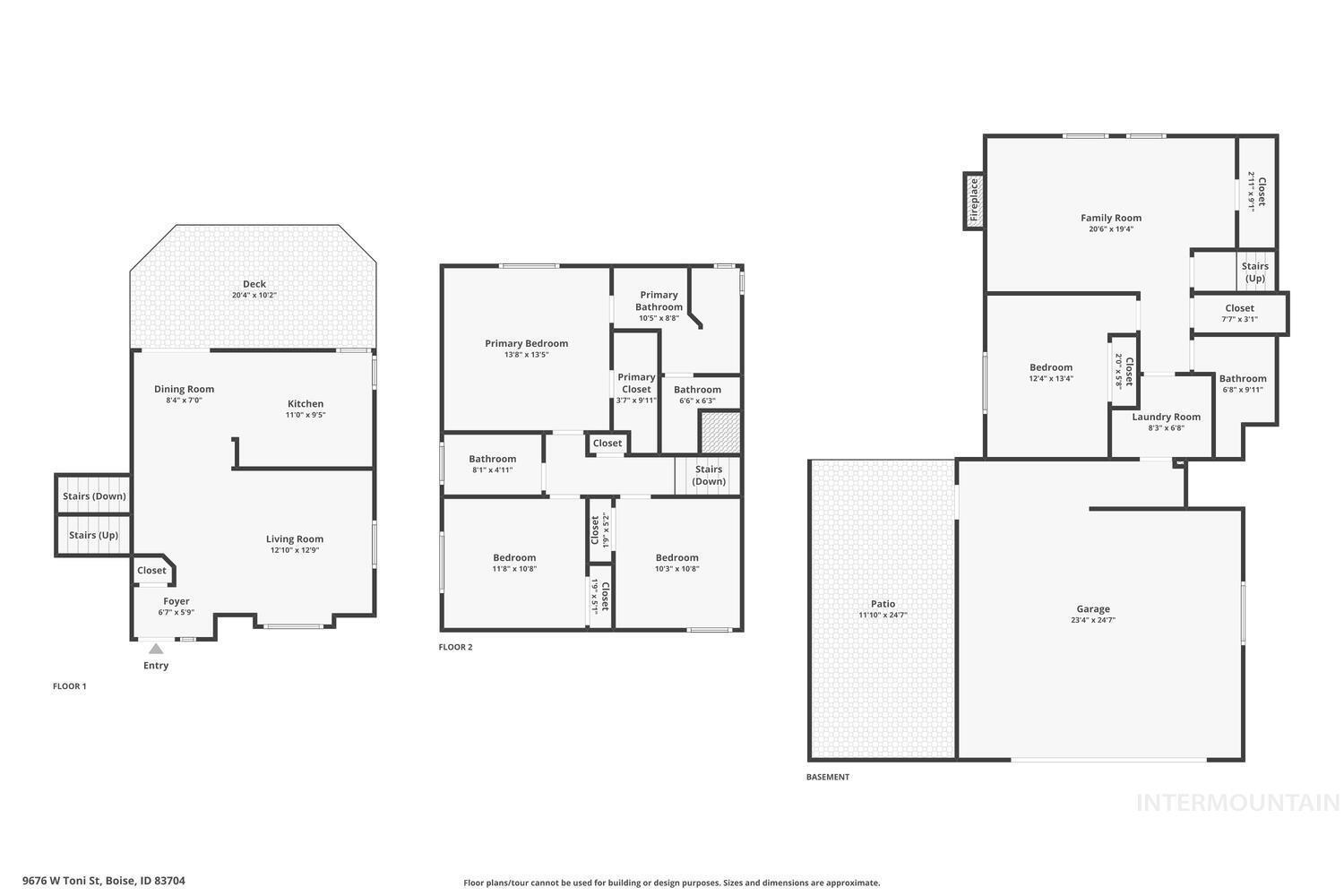
9676 W Toni St Boise, ID 83704
Directions
N on Five Mile, E on Ustick, N on Mitchell, E on Toni
Price: $489,900
Beds: 4
Baths: 3
Garages: 2
Type: Single Family Residence
Area: Boise W-Garden City - 0650
Land Size: Standard Lot 6000-9999 SF, Sidewalks, Auto Sprink
SqFt: 1933
Acres: 0.15
Garage Type: true
Subdivision: Harrisburg Plac
Year Built: 1993
Construction: Frame, Wood Siding
Includes
Fireplace: One, Gas
Air Conditioned: true
Water: City Service
Heating: Forced Air, Natural Gas
Schools
School District: West Ada School District
Sr High School: Centennial
Jr High School: Lowell Scott Middle
Grade School: Summerwind
Contact for more details:
A-Team Consultants
1099 S Wells St #200, Meridian, ID 83642
Phone: 208.761.1735 Email: info@ateamboise.com
1099 S Wells St #200, Meridian, ID 83642
Phone: 208.761.1735 Email: info@ateamboise.com
Description
Hard to find 4 bedroom, 3 bath home with 2 LIVING SPACES in established West Boise neighborhood with RV PARKING! Hard to find North facing backyard and South facing driveway! Perfect for afternoon shade and snowmelt! This home has been lovingly maintained. Granite countertops throughout all bathrooms and kitchen! Primary suite features walk in tile surround shower, dual vanities and walk in closet! Fully fenced backyard complete with deck and ample sized storage shed!
Legal Description:
Lot 10 Blk 2 Harrisburg Place Sub #9348687
Lot 10 Blk 2 Harrisburg Place Sub #9348687
| Listing info for this property courtesy of Finding 43 Real Estate Information deemed reliable but not guaranteed. Buyer to verify all information. All properties are subject to prior sale, change or withdrawal. Neither listing broker(s), shall be responsible for any typographical errors, misinformation, misprints and shall be held totally harmless. |










































