4517 Portofino Way Caldwell, ID 83607
Directions
Caldwell Blvd, W on Ustick, past 10th Ave, S on Kimball Ave
Price: $706,900
Beds: 6
Baths: 4
Garages: 3
Type: Single Family Residence
Area: Caldwell SW - 1280
Land Size: 10000 SF - .49 AC, Auto Sprinkler System, Full Spr
SqFt: 4135
Age: Under Construction
Acres: 0.24
Garage Type: true
Subdivision: Soterra
Year Built: 2026
Construction: Frame, HardiPlank Type
Includes
Air Conditioned: true
Water: City Service
Heating: Forced Air, Natural Gas
Schools
School District: Caldwell School District #132
Sr High School: Caldwell
Jr High School: Jefferson
Grade School: Lewis & Clark (Caldwell)
Contact for more details:
A-Team Consultants
1099 S Wells St #200, Meridian, ID 83642
Phone: 208.761.1735 Email: info@ateamboise.com
1099 S Wells St #200, Meridian, ID 83642
Phone: 208.761.1735 Email: info@ateamboise.com
Description
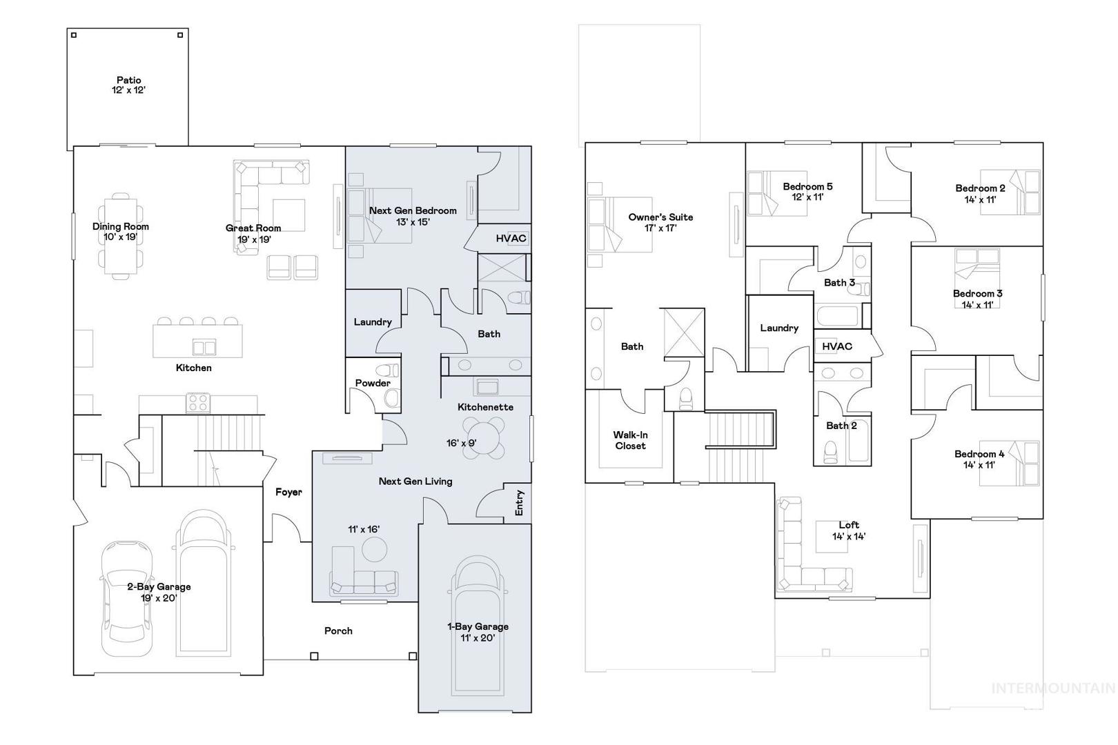
Designed for extended families or flexible living needs, the Valley Series – Next Gen® offers two complete living spaces in one. The private suite includes its own entrance, kitchenette, quartz countertops with full backsplash, private laundry, and a comfortable living space. The main home features 9’ ceilings, a spacious great room, covered patio, and a fully equipped gourmet kitchen with quartz countertops, designer cabinets, and a refrigerator. With full landscaping, blinds, washer/dryer, and energy-efficient features, this series offers independence, style, and thoughtful design for all. The Soterra community offers a variety of large homesites, including those for RV garages and Next Gen® homes, all in a central location near shopping, entertainment, and recreation areas like Lake Lowell. Soterra features pickle ball courts, playground, walking paths, and a large picnic shelter.
Legal Description:
Lot 02, Block 02, Soterra Sub, recorded in the plats of Canyon County, Idaho
Lot 02, Block 02, Soterra Sub, recorded in the plats of Canyon County, Idaho
| Listing info for this property courtesy of Lennar Sales Corp Information deemed reliable but not guaranteed. Buyer to verify all information. All properties are subject to prior sale, change or withdrawal. Neither listing broker(s), shall be responsible for any typographical errors, misinformation, misprints and shall be held totally harmless. |


































